
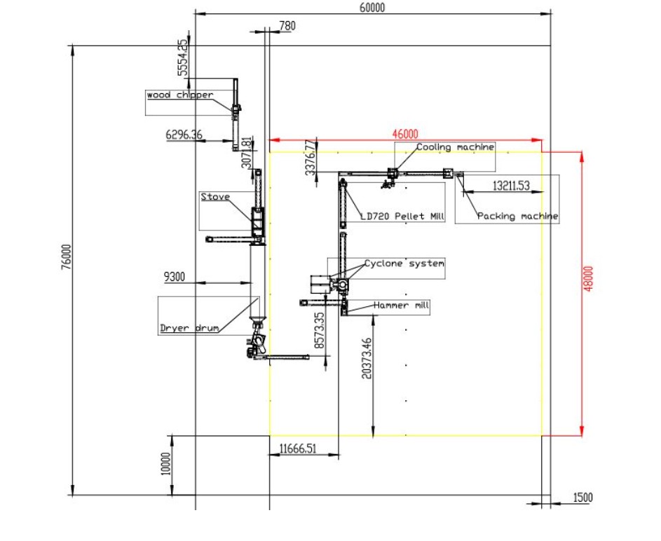
CASE
铭创(山东)机械有限公司专业生产生物质颗粒燃料单机以及成套成型设备,可为客户提供以木材边角料为原料的生物质制粒解决方案
原料:木材边角料
水分:50%
产量要求:2-3t/h
工艺流程简介:
1.粗粉工段:木片机将木材边角料破碎成3-8CM的木片
2.细粉工段:粉碎机将3-8CM的木片研磨成3-5mm的木屑
3.烘干工段:烘干机将粉碎后的湿木屑含水率从50%降到10-15%
4.制粒工段:颗粒机将烘干后的干木屑通过纯物理挤压制成颗粒
5.冷却工段:冷却机将成品颗粒冷却到自然温度
6.包装工段:包装机将冷却好的颗粒进行打包
铭创(山东)机械有限公司
0531-66699178